找回密码
 立即注册

QQ登录

只需一步,快速开始

搜索
查看: 2770|回复: 1
收起左侧

请教如何在实物单片机上lcd1602的数据通过串口通信在仿真单片机1602上显示时间

[复制链接]
ID:760552 发表于 2020-5-28 12:57 | 显示全部楼层 |阅读模式
20黑币
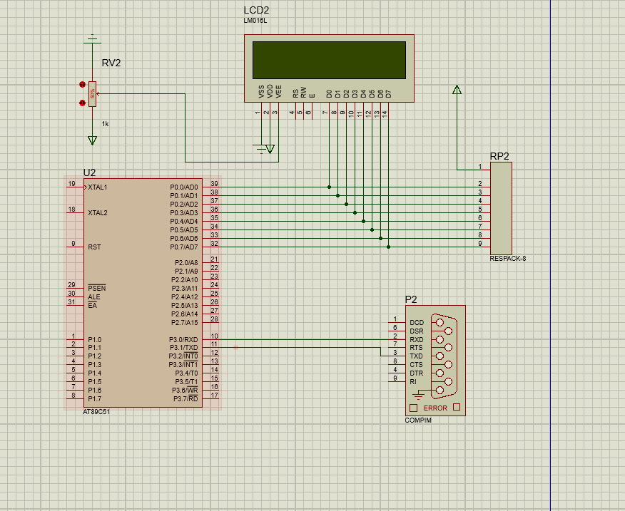
lcd1602上的数据应该如何去定义为一个数组发送至缓冲区SBUF,然后传到仿真单片机1602上显示
                  


                                       求大佬们帮帮忙,求求了
1.png 2.png 3.png 4.png





回复

使用道具 举报

ID:660091 发表于 2020-5-29 09:28 | 显示全部楼层
串口发送一个字节程序,你如果先发数组,把数据放到数组里再for循环发送就行了:
void send_byte(u8 i)            //串口发送一个字节
{
        SBUF=i;                                        //启动串口发送
        while(TI==0);
        TI=0;
}
回复

使用道具 举报

您需要登录后才可以回帖 登录 | 立即注册

本版积分规则

小黑屋|51黑电子论坛 |51黑电子论坛6群 QQ 管理员QQ:125739409;技术交流QQ群281945664

Powered by 单片机教程网

快速回复 返回顶部 返回列表